Viareggio, in pieno centro storico, appartamento recentemente ristrutturato, posto al piano secondo senza ascensore, di piccola palazzina senza amministratore condominiale.
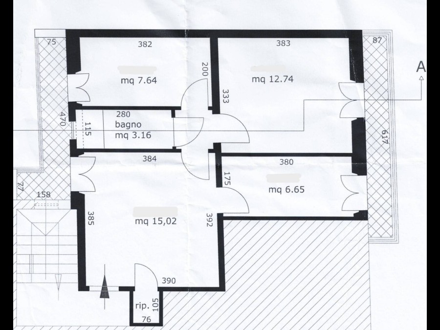
L'immobile, moderno e luminoso è composto da: soggiorno con balcone, cucinotto con balcone, disimpegno, camera, stanza armadi (uso cameretta), bagno finestrato con doccia e ripostiglio.
Si presenta in ottime condizioni, ristrutturato recentemente.
E' inoltre dotato di impianto di climatizzatore, infissi in pvc e portoncino blindato.
Viene venduto completo di arredamento.
Posto bici al piano terra della palazzina.
Spese condominiali irrisorie (pulizia scale e illuminazione scale).
Classe energetica E, EPgl,ren 190,81 kWh/mq anno, EPgl,ren 4,3 kWh/mq anno.
Il presente documento è stato predisposto per soli fini informativi. Esso non costituisce né offerta al pubblico né sollecitazione all’acquisto né proposta di conclusione di contratto e non potrà quindi mai considerarsi impegnativo. Le informazioni presenti nel presente documento sono fornite a titolo puramente indicativo e sono quindi soggette a modifiche, aggiunte e/o soppressioni senza alcun preavviso.
