Viareggio, quartiere Migliarina, in zona ben servita e di facile accesso, villetta a schiera, libera su due lati, con posto auto e con spazio esterno
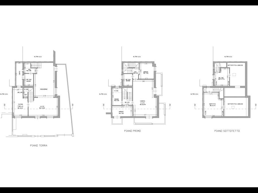
L'immobile, è attualmente un'unica unità urbanistica e catastale anche se è stato originariamente edificato come due unità immobiliari ben distinte (uno al piano terra e uno al piano primo e sottotetto).
Il ripristino ad immobile di tipo villino è molto semplice.
Ancora da valutare se il frazionamento può essere ufficiale per la realizzazione di due civili abitazioni.
Superficie commerciale piano terra e primo circa 143mq oltre mansarda, balconi e resede esterna.
Rendita catastale euro 1.099,67.
Superficie catastale totale 191mq (totale escluse aree scoperte 180mq).
Valore catastale se acquistato con agevolazioni prima casa euro 127.000 circa.
Valore catastale se acquistato senza agevolazioni prima casa euro 139.000 circa.
Classe energetica F, EPgl,nren 197,77 kWh/mq anno.
Il presente documento è stato predisposto per soli fini informativi. Esso non costituisce né offerta al pubblico né sollecitazione all’acquisto né proposta di conclusione di contratto e non potrà quindi mai considerarsi impegnativo. Le informazioni presenti nel presente documento sono fornite a titolo puramente indicativo e sono quindi soggette a modifiche, aggiunte e/o soppressioni senza alcun preavviso.
